139 Carroll Street, Dunedin Central, Dunedin
Renovation or Development Potential
OSP
Enquire about this property
OSP
139 Carroll Street, Dunedin Central, Dunedin
Renovation or Development Potential
Investments For Sale
$349,000
About
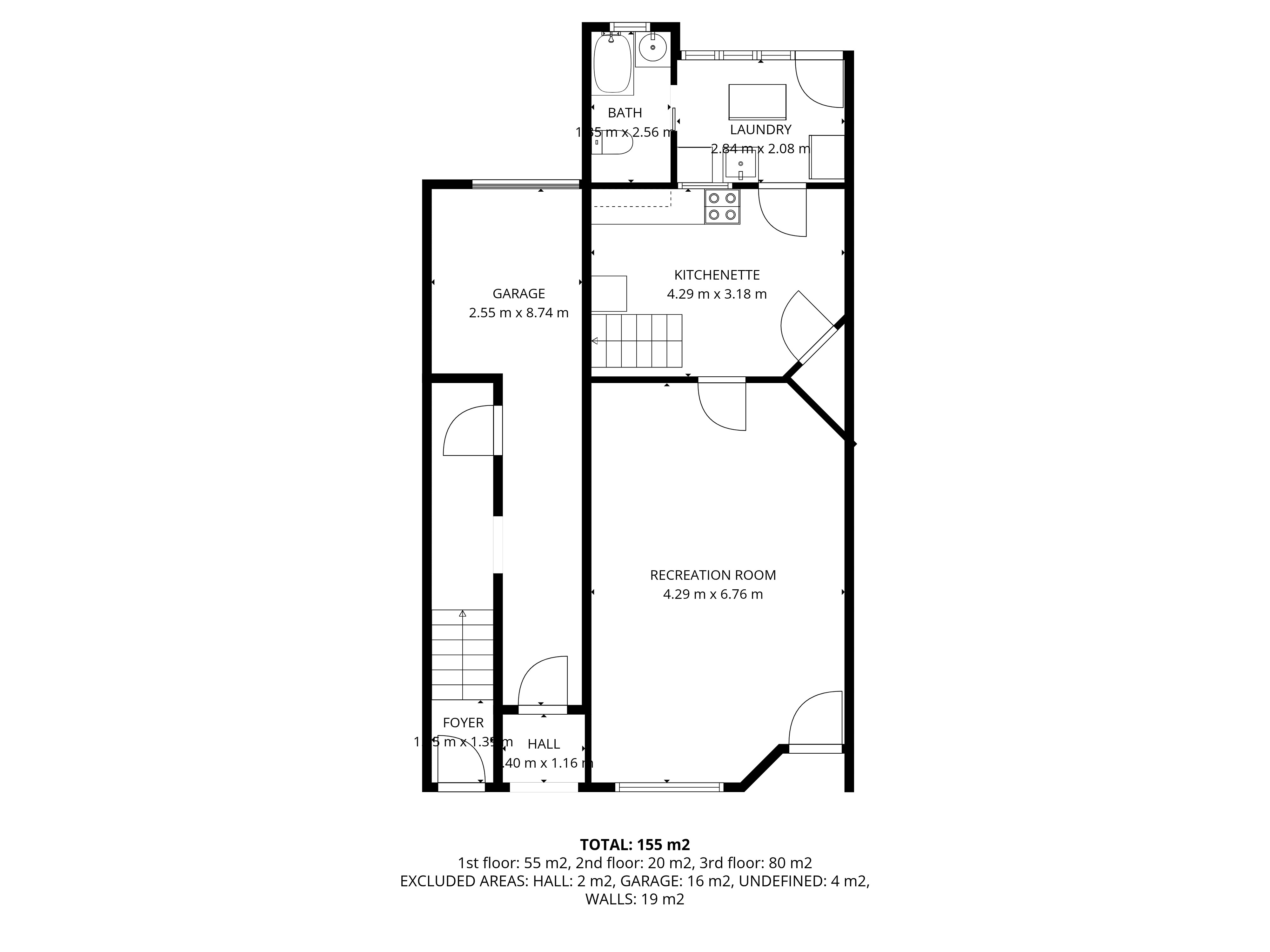
Built in the 1880s, this substantial 162m2 building has certainly stood the test of time. Situated in an area where neighbouring owners are actively upgrading and redeveloping their properties, this is a genuine opportunity for buyers seeking a project with future upside.
Agents
Lane Sievwright
Director, Residential and Investment Property Consultant
Mobile: 021 526 366
Direct dial:
Clayton Sievwright
Residential and Investment Property Consultant
Mobile: 021 191 5555
Direct dial:
Aimee Marsh
Residential and Investment Property Consultant



